Quem amou o título? Se você não curtiu, não tem problema, porque eu acho que as fotos, isso, sim, você vai amar! Olha que casinha bem legal?! E tipo, praticamente um corredor, sim, porque a planta mostra isso: uma kitnete comprida, mas os moradores capricharam no planejamento. Tem até armário subterrâneo ahaha Ficaram curiosas(os)? Olha aí, estou falando sério, vejam:
Olhando do quarto para a sala é isso aqui
Olhando da sala para o quarto, vemos a cozinha por aqui...
Perceberam que o banheiro fica no "caminho"? Será que o banheiro é sempre assim, aberto? Não tem porta nenhuma? kkkkk
Às vezes publico quitinetes e todo mundo me pergunta: cadê os armários hehehe Este aqui tem um monte deles viram?
Olha, estão vendo este desenho? É o quarto visto de frente, como se você estivesse na frente da cama. Olha ali o "armário subterrâneo" que está na foto ali de baixo
Viram que tem uma cortina que separa o quarto do restante?
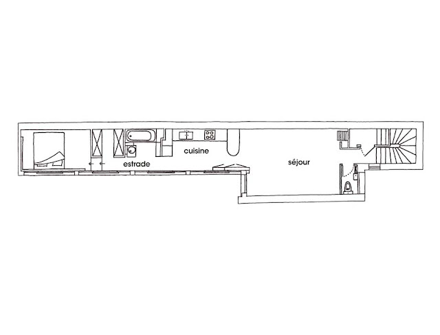
A planta está aqui e, ao clicar, ela fica bem grande e melhor para compreendê-la
fotos cortesia: ducotedechezvous.com
E aí, gostaram ou acharam meio maluquinha demais? Me conta, vai!
Beijos, beijos e falem comigo, tá? Vou adorar!
Carmen Martins
As fotos e imagens aqui publicadas, bem como seus direitos autorais, pertencem aos seus respectivos proprietários. A minha fonte de pesquisa de todas elas está citada em todos os posts. Caso você seja proprietário de alguma imagem e queira que o seu link seja mencionado, entre em contato comigo, para que eu possa fazer as devidas alterações. Se você levar alguma imagem, seja gentil e mencione sua fonte de pesquisa. PS: Neste blog ainda não se adotam as novas regras de ortografia







No comments:
Post a Comment